AS OY KUOPION
SUTIMESTARI
Lohkaretie 3
70700 Kuopio
115 asuntoa
Tervetuloa Särkiniemeen!
As Oy Kuopion Sutimestari on perinteisin menetelmin vuosina 2002-2003 lvis-peruskorjattu iso taloyhtiö Särkiniemen parhaalla paikalla. Tämä neljästä asuinrakennuksesta koostuva taloyhtiö on loistava valinta niin omaksi kodiksi, vuokralle kuin sijoitusasunnoksi.
Hyvä sijainti, monipuolinen asuntojakauma ja erittäin edulliset hoitovastikkeet sekä myyntihinnat tekevät Lohkaretien kohteesta houkuttelevan viihtyisää ja kohtuuhintaista kotia kaipaaville. Läheltä löydät kattavat palvelut sekä erinomaiset kulkuyhteydet keskustaan ja Savilahden kehittyvälle alueelle.
As Oy Kuopion Sutimestari on yhteinen kehityskohde Stockpos Oy:n kanssa, joka on myös Naapurikotien osaomistaja.
Tutustu lisää Sutimestarin kohteeseen alta.
Sutimestarin faktat
Osoite
Valmistumisvuosi
Peruskorjausvuosi
Asuntomäärä
Liiketilat
Asuntojen koot
Autopaikat
Tontti
Lämmitysmuoto
Hoitovastike
Myyntihinnat alkaen
Velattomat hinnat alkaen
Lohkaretie 3, 70700 Kuopio
1969-1970
2002-2003
115
2 kpl, taloyhtiön omistuksessa
26,5m2 -87,5m2 (1h-4h)
78 kpl + 8 vieraspaikkaa
Vuokra, Kuopion kaupunki
Kaukolämpö
3,15€/m2
18 648€
76 000€
Taloyhtiö
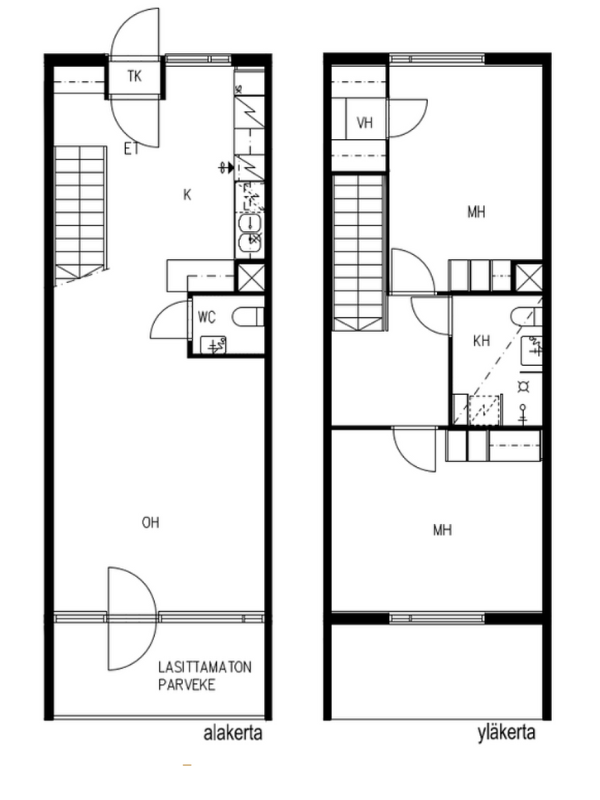
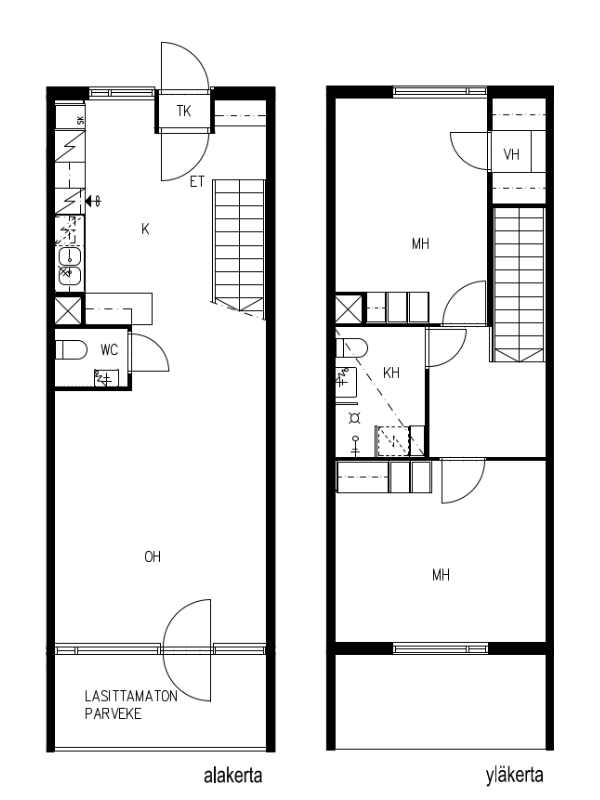
As Oy Kuopion Sutimestari koostuu neljästä asuinrakennuksesta (A-D), joissa on yhteensä 115 asuinhuoneistoa yksiöistä neliöihin sekä kaksi liiketilaa, joissa on vuokralla kaupungin päiväkoti. Jokaisessa rakennuksessa on erittäin siistissä kunnossa olevat yhteiset saunatilat ja C-taloa lukuun ottamatta jokaisessa talossa on oma, käyttäjille veloitukseton pyykkitupa. Lämmintä varastotilaa on runsaasti jokaiselle asunnolle ja lisäksi taloyhtiössä on muutama omilla osakenumeroilla oleva pienvarasto. Kohteessa on myös iso kerhohuone.
Sutimestarin erikoisuutena on luhtitalomaiset kerrostalot. A-talo on yhdeksänkerroksinen ja siinä on yksitasoisia saunallisia neliöitä sekä kaksitasoisia kolmioita. Jokaisella asunnolla on parveke. B- ja C-taloissa on kaksioita, joilla kaikilla on oma sisäänkäynti suoraan ulkoa omalta pieneltä piha-alueelta. Lisäksi myös näissä taloissa on kaksitasoisia kolmiota. D-talo on täynnä kahdenkokoisia yksiöitä, parvekkeilla ja ilman.
Kuopion Sutimestarilla on tilava ja edullinen Kuopion kaupungin vuokratontti, jonka sopimus on nykyisellään voimassa pitkälle vuoteen 2050 saakka. Vuokrankorotukset on sidottu elinkustannusindeksiin. Tontilta löytyy kaksi hyvässä kunnossa olevaa leikkipaikkaa sekä päiväkodin käytössä arkisin oleva aidattu piha-alue. Pihassa on myös grillikatos, joka on vapaasti asukkaiden käytettävissä. Viereisellä tontilla on kaupungin ylläpitämä rantalentopallokenttä sekä vastikään uusittu leikkipuisto.
TEHDYT REMONTIT (merkittävimmät)
- LVIS-peruskorjaus vuosina 2002-2003, joka on toteutettu perinteisin menetelmin ja jonka yhteydessä kaikki asunnot on pintaremontoitu sekä kalusteet uusittu. Peruskorjauksen yhteydessä myös kaikki yhteiset tilat on remontoitu ja ikkunat sekä parvekeovet vaihdettu.
- D-talon kerrostaso-ovien ja lukituksen (iLoq) uusiminen 2021
- A-talon vesikatto 2020
- Lämmönsäädin 2021
- Pesukone ja kuivausrumpu uusittu 2019 & 2021
- Piha-alueen valaistus 2021
- Julkisivun betoniosien korjaukset ja B-, C,- ja D-talon parvekekaiteiden pellitykset sekä D-talon puuosien maalaukset 2025.
SUUNNITELLUT REMONTIT
- B-,C- ja D-talojen vesikattojen kunnon seuraaminen ja huolto/korjaus.
Sutimestarin luhtitalomaisuus
tuo asumiseen omanlaisensa
tunnelman
Katso videolta lyhyt esittely kohteesta.
Uusi erä asuntoja on nyt julkaistu myyntiin!
Katso alta myynnissä olevat asunnot ja lisätiedot. Asuntolistan alapuolelta löydät erillisen ladattavan myyntiesitteen, jossa on lisää kuvia asunnoista.
Kulje asunnon läpi virtuaalisesti!
TUTUSTU TARKEMPAAN MYYNTIMATERIAALIIN ALTA!
Huomaathan, että voit asettua jonoon, vaikka asunto olisikin jo varattu. Aina kauppa ei syystä tai toisesta onnistu ensimmäisen varaajan kanssa ja siinä tapauksessa ilmoitamme varauksen peruuntumisesta jonossa seuraavana olevalle.
Särkiniemi asuinalueena
Särkiniemestä on sujuvat kulkuyhteydet Savilahden kampus- ja yritysalueelle niin kävellen, julkisilla kuin omallakin autolla. Läheltä löytyy KYS, kaikki suurimmat ruokakaupat sekä Bellanrannan aktiviteetti- ja elämyskeskus. Kuopion keskustaankin on matkaa alle neljä kilometriä ja eteläiseen Kuopioon sekä Saaristokaupunkiin on Särkiniemestä hyvät ja nopeat yhteydet.
Särkiniemi on rakennettu pääosin 60-70-luvulla, mutta alueelle on tullut viime vuosina myös jonkin verran uudiskohteita. Monet alueen taloyhtiöt käyvät parhaillaan läpi peruskorjauksia.
Särkiniemessä on alakoulun 1.-4.-luokat ja ylemmät luokat Neulamäessä, joka on aivan Savilahden kupeessa. Alue on rauhallista ja ihanteellinen paikka niin lapsiperheille, eläkeläisille kuin opiskelijoillekin. Kaupungin kehittämisen painopiste on siirtynyt jo Savilahteen ja Särkiniemi kuuluu kehitysalueen vaikutuspiiriin.
Kuopio sijoittajan silmin
- Kuopio on muuttovoittoinen, Suomen 8. suurin kaupunki.
- Väestönkasvu näkyy myös positiivisena vuokratason kehityksenä.
- Kuopio houkuttelee opiskelijoita sekä yliopistoon että ammattikorkeakouluun.
- Yliopistollinen sairaala sijaitsee yliopistokampuksen vieressä.
- Kaupunkia kehitetään asumisen, koulutuksen, kulttuurin ja työpaikkojen näkökulmasta. Esimerkiksi kansainvälinen Finvector investoi juuri uuden tehtaan Kuopioon.
- Yli 120 000 asukkaan kaupunki pystyy työllistämään perheen molemmat aikuiset tänne muuttaessa.
- Kuopiossa asuntojen hintataso on maltillinen, mutta vuokrataso silti hyvä.
Omaksi kodiksi,
sijoitusasunnoksi tai
flipattavaksi
Lohkaretie 3 tarjoaa monipuolisesti koteja niin oman kodin ostajille, asuntosijoittajille kuin asuntoflippaajillekin. Sutimestarin asunnot soveltuvat erinomaisesti vuokrauskohteiksi sijainnin, vuokratuoton kuin ostohinnankin puolesta. Isossa yhtiössä hoitovastike on erittäin maltillinen ja yhtiölaina pitkä ja edullisella korolla.
Taloyhtiö tarjoaa hyvät puitteet myös oman kodin ostajalle, sillä yhtiöstä löytyy asuntopohjia erilaisiin tarpeisiin yksinasujasta perheille. Kolmioissa on kaksi wc:tä ja neliöissä oma sauna. Taloyhtiön yhteydessä toimivat kaksi päiväkotia helpottavat lapsiperheiden arkea ja edullisella myyntihinnalla on helppo päästä käsiksi omaan kotiin.
Meidän kanssa asuntokauppa on sujuvaa ja helppoa! Tarjoamme asiantuntevaa palvelua jokaiselle ostajalle ja meiltä voit kysyä apua myös rahoitukseen liittyen. Ota yhteyttä niin etsitään yhdessä sinulle sopiva koti!
Ota yhteyttä
Täytä yhteydenottolomake ja kerro, kuinka voisimme olla avuksi! Olemme sinuun yhteydessä pikimmiten.










